Commercial
PROPOSED HOLIDAY CABIN SITE, NEAR GLENALMOND
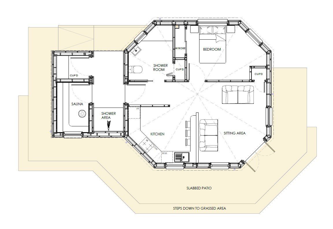
The Planning documents for this project are almost complete. A small holiday cabin in Perthshire with a separate sauna. European cladding by Russwod and a Sarnafil single ply membrane to the flat and pitched roofs.
The cabin has been positioned on the site to take in the views to the east and south east, while allowing the original farmhouse to retain its privacy.
CONSULTANTS:
Griffen Design Ltd, Dundee




